Description
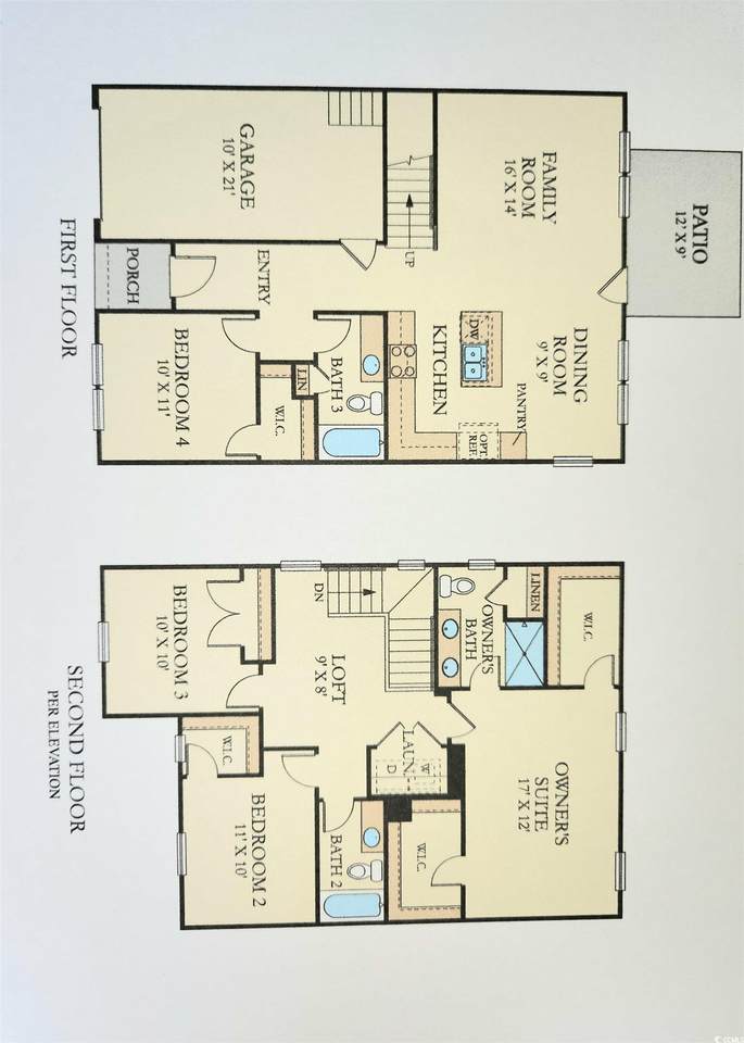
Last available Shellwood home currently under construction and scheduled for completion in April 2025. This Wilmington floor plan on pond homesite highlights a spacious open concept on the first floor, featuring a fourth bedroom with a full bathroom. Upstairs, it boasts an expansive owner's suite with dual walk-in closets, alongside an open loft area and two additional bedrooms. Shellwood represents a brand-new community offering a low-maintenance lifestyle. Amenities include a community pool and lawn maintenance for each home, allowing residents more time to enjoy coastal living. Its prime location in Little River provides convenient access to shopping, beaches, renowned golf courses, restaurants, and schools, further enhancing its appeal. Positioned just minutes from Cherry Grove, North Myrtle Beach, and Brunswick County, NC.
-
4BEDS
-
N/AACRES
-
3BATHS
-
01/2 BATHS
-
1,835SQFT
-
$0$/SQFT
School Information
Description
Last available Shellwood home currently under construction and scheduled for completion in April 2025. This Wilmington floor plan on pond homesite highlights a spacious open concept on the first floor, featuring a fourth bedroom with a full bathroom. Upstairs, it boasts an expansive owner's suite with dual walk-in closets, alongside an open loft area and two additional bedrooms. Shellwood represents a brand-new community offering a low-maintenance lifestyle. Amenities include a community pool and lawn maintenance for each home, allowing residents more time to enjoy coastal living. Its prime location in Little River provides convenient access to shopping, beaches, renowned golf courses, restaurants, and schools, further enhancing its appeal. Positioned just minutes from Cherry Grove, North Myrtle Beach, and Brunswick County, NC.
© 2026 Coastal Carolinas Association of REALTORS® MLS. All rights reserved. IDX information is provided exclusively for consumers' personal, non-commercial use and may not be used for any purpose other than to identify prospective properties consumers may be interested in purchasing. Information is deemed reliable but is not guaranteed accurate by the MLS or Broach Real Estate | RE/MAX Professionals. The data relating to real estate for sale or lease on this web site comes in part from CCAR. Real estate listings held by brokerage firms other than Broach Real Estate | RE/MAX Professionals are marked with the CCAR logo or an abbreviated logo and detailed information about them includes the name of the listing broker.
Data last updated: 2026-01-20T21:20:46.023.