Description
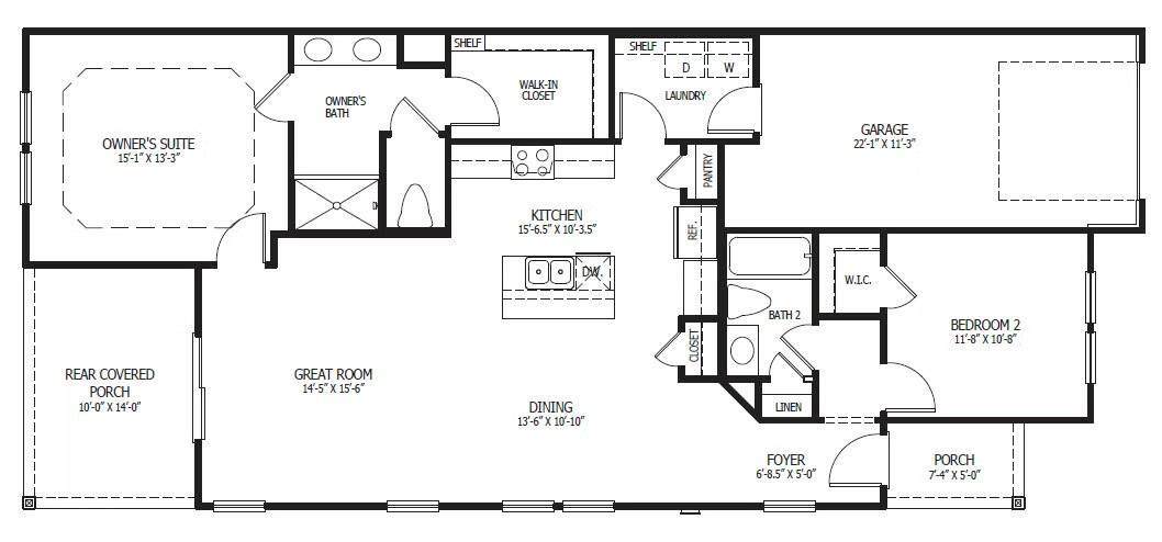
As you enter through the foyer, a hallway to your right leads to a cozy bedroom featuring a walk-in closet. Across the hall is a full bathroom, complete with a convenient linen closet. Continuing through the home, you'll discover a spacious kitchen with a stunning island, perfect for hosting holiday gatherings. The kitchen is equipped with a MOEN Brushed Nickel pull-out faucet and a built in soap dispenser. Prepare delicious meals on your natural gas stove, then gather with loved ones for dinner. The journey continues into the inviting great room, where you can unwind after a long day, cozy up, and enjoy your favorite shows. But the comfort doesn't end there! At the rear of the house, you'll find the Owner's Suite, a private retreat with a walk-in closet, a double bowl sink and a separate enclosed toilet room. The bathrooms are equipped with MOEN brushed nickel bath accessories and faucets, offering a modern and elegant touch throughout the home.
-
2BEDS
-
N/AACRES
-
2BATHS
-
01/2 BATHS
-
1,299SQFT
-
$256$/SQFT
School Information
Description
As you enter through the foyer, a hallway to your right leads to a cozy bedroom featuring a walk-in closet. Across the hall is a full bathroom, complete with a convenient linen closet. Continuing through the home, you'll discover a spacious kitchen with a stunning island, perfect for hosting holiday gatherings. The kitchen is equipped with a MOEN Brushed Nickel pull-out faucet and a built in soap dispenser. Prepare delicious meals on your natural gas stove, then gather with loved ones for dinner. The journey continues into the inviting great room, where you can unwind after a long day, cozy up, and enjoy your favorite shows. But the comfort doesn't end there! At the rear of the house, you'll find the Owner's Suite, a private retreat with a walk-in closet, a double bowl sink and a separate enclosed toilet room. The bathrooms are equipped with MOEN brushed nickel bath accessories and faucets, offering a modern and elegant touch throughout the home.
© 2025 Coastal Carolinas Association of REALTORS® MLS. All rights reserved. IDX information is provided exclusively for consumers' personal, non-commercial use and may not be used for any purpose other than to identify prospective properties consumers may be interested in purchasing. Information is deemed reliable but is not guaranteed accurate by the MLS or Broach Real Estate | RE/MAX Professionals. The data relating to real estate for sale or lease on this web site comes in part from CCAR. Real estate listings held by brokerage firms other than Broach Real Estate | RE/MAX Professionals are marked with the CCAR logo or an abbreviated logo and detailed information about them includes the name of the listing broker.
Data last updated: 2025-11-16T22:20:30.237.