Description
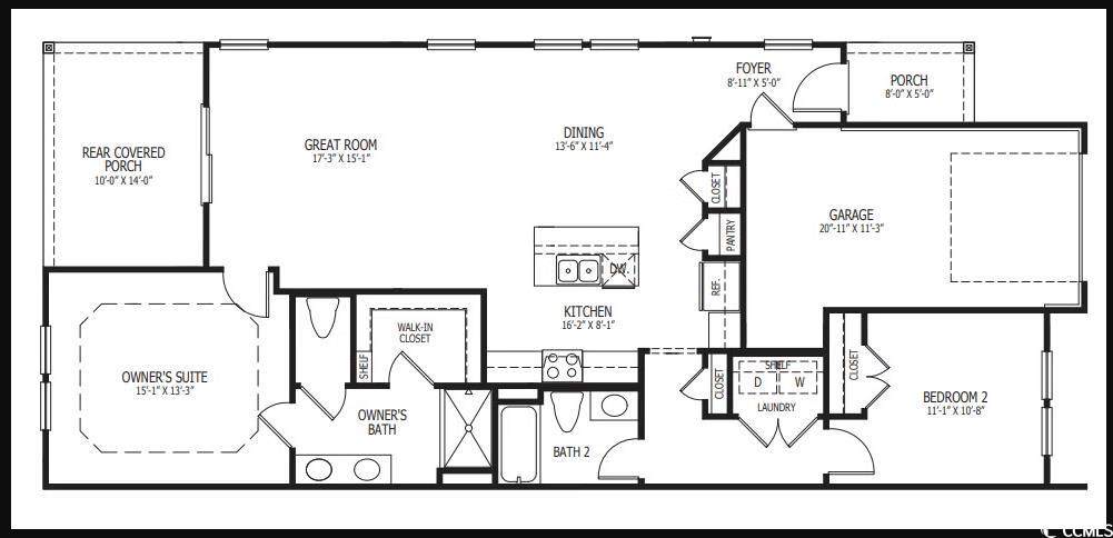
As you enter through the foyer, a door to the garage is conveniently located to your left. Continuing through the home, you'll discover a spacious kitchen featuring a beautiful islandperfect for hosting holiday gatherings. The kitchen is equipped with a MOEN brushed nickel faucet and a built-in soap dispenser, adding both style and functionality. Prepare delicious meals on your natural gas stove and enjoy memorable family dinners. To the left of the kitchen, a hallway leads to a bedroom at the end, complete with a walk-in closet on your left. On the right, you'll find a full bathroom with a tub, equipped with elegant MOEN brushed nickel bath accessories and faucets for a modern touch. Moving further into the home, the great room invites you to relax after a long day. Cozy up and enjoy your favorite shows in this welcoming space. But the comfort doesn't end there! At the rear of the house, the Owner's Suite awaitsa private retreat with an attached bathroom, walk-in closet, and an enclosed toilet room. The bathroom continues the theme of sophistication with MOEN brushed nickel bath accessories and faucets. Welcome to your new life in The Bayside!
-
2BEDS
-
N/AACRES
-
2BATHS
-
01/2 BATHS
-
1,324SQFT
-
$251$/SQFT
School Information
Description
As you enter through the foyer, a door to the garage is conveniently located to your left. Continuing through the home, you'll discover a spacious kitchen featuring a beautiful islandperfect for hosting holiday gatherings. The kitchen is equipped with a MOEN brushed nickel faucet and a built-in soap dispenser, adding both style and functionality. Prepare delicious meals on your natural gas stove and enjoy memorable family dinners. To the left of the kitchen, a hallway leads to a bedroom at the end, complete with a walk-in closet on your left. On the right, you'll find a full bathroom with a tub, equipped with elegant MOEN brushed nickel bath accessories and faucets for a modern touch. Moving further into the home, the great room invites you to relax after a long day. Cozy up and enjoy your favorite shows in this welcoming space. But the comfort doesn't end there! At the rear of the house, the Owner's Suite awaitsa private retreat with an attached bathroom, walk-in closet, and an enclosed toilet room. The bathroom continues the theme of sophistication with MOEN brushed nickel bath accessories and faucets. Welcome to your new life in The Bayside!
© 2025 Coastal Carolinas Association of REALTORS® MLS. All rights reserved. IDX information is provided exclusively for consumers' personal, non-commercial use and may not be used for any purpose other than to identify prospective properties consumers may be interested in purchasing. Information is deemed reliable but is not guaranteed accurate by the MLS or Broach Real Estate | RE/MAX Professionals. The data relating to real estate for sale or lease on this web site comes in part from CCAR. Real estate listings held by brokerage firms other than Broach Real Estate | RE/MAX Professionals are marked with the CCAR logo or an abbreviated logo and detailed information about them includes the name of the listing broker.
Data last updated: 2025-11-13T23:20:41.76.